Если цена в объявлении изменится, мы сразу сообщим вам об этом на электронную почту.
Нажимая «Подписаться», вы соглашаетесь с правилами.
продам дом, Верхняя, 217 900 000 ₽
8 дек
Дата публикации объявления
Обн. 4 апр
Дата обновления объявления
6
Количество просмотров (+ просмотры за сегодня)
123 438 ₽/м²
Чистая продажа
Термин "Чистая продажа" означает, что в квартире никто не прописан или
есть куда выписаться и вывезти вещи. Это лучший вариант для покупателя.
Вероятность срыва сделки минимальна.
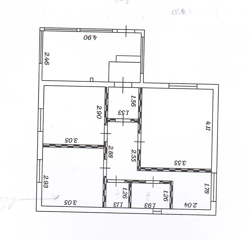
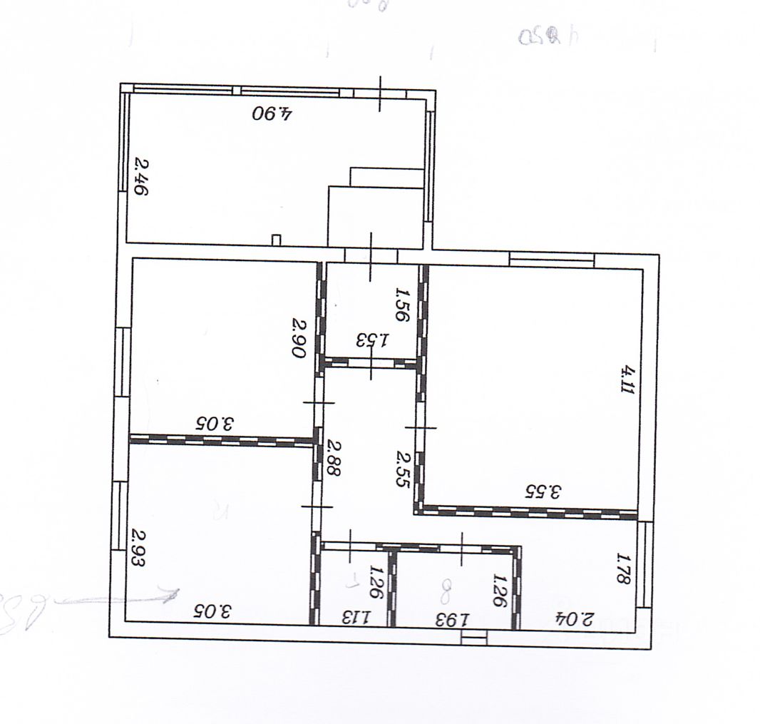
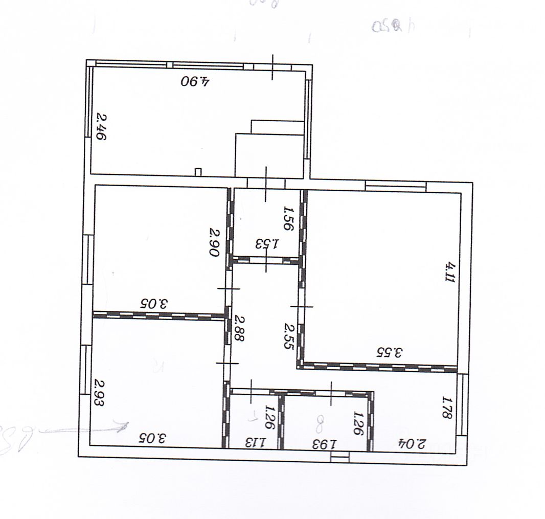
Этажей1
Площадь участка15 соток
Общая площадь64 м2
Материал домадерево
ЭлектричествоЕсть
Газоснабжениенет
Предлагаем к продаже новый жилой Дом прописной. Очень теплый, уютный. Удобная локация: на возвышенности, подъездные пути с нескольких сторон - регулярно чистят, рядом - проспект Карла Маркса, лицей 1, МЧС, магазины, и тд.. Центральное отопление и водоснабжение. Дополнительно действующая сауна - в отдельностоящем гостевом домике хорошо протапливается, долго удерживает тепло, душевая кабина, санузел, комната отдыха. Установлены видеонаблюдение, спутниковая антенна. В доме 3 комнаты, кухня, оборудована ванная, санузел. Стеклопакеты, дюралиминеевые радиаторы, встроенная веранда. Высокое чердачное помещение, новая крыша. Во дворе - две теплица, хозпостройки, зона отдыха. Рядом Хорошие соседи.
Предлагаем к продаже новый жилой Дом прописной. Очень теплый, уютный. Удобная локация: на возвышенности, подъездные пути с нескольких сторон - регулярно чистят, рядом - проспект Карла Маркса, лицей 1, МЧС, магазины, и тд.. Центральное отопление и водоснабжение. Дополнительно действующая сауна - в отдельностоящем гостевом домике хорошо протапливается, долго удерживает тепло, душевая кабина, санузел, комната отдыха. Установлены видеонаблюдение, спутниковая антенна. В доме 3 комнаты, кухня, оборудована ванная, санузел. Стеклопакеты, дюралиминеевые радиаторы, встроенная веранда. Высокое чердачное помещение, новая крыша. Во дворе - две теплица, хозпостройки, зона отдыха. Рядом Хорошие соседи. Земельный участок 15 соток - в собственности огорожен , по периметру высажены лиственницы и ольха. Всё в собственности. Документы готовы к продаже !!! Звоните покажем в удобное для вас время. Реальному покупателю - торг !!!